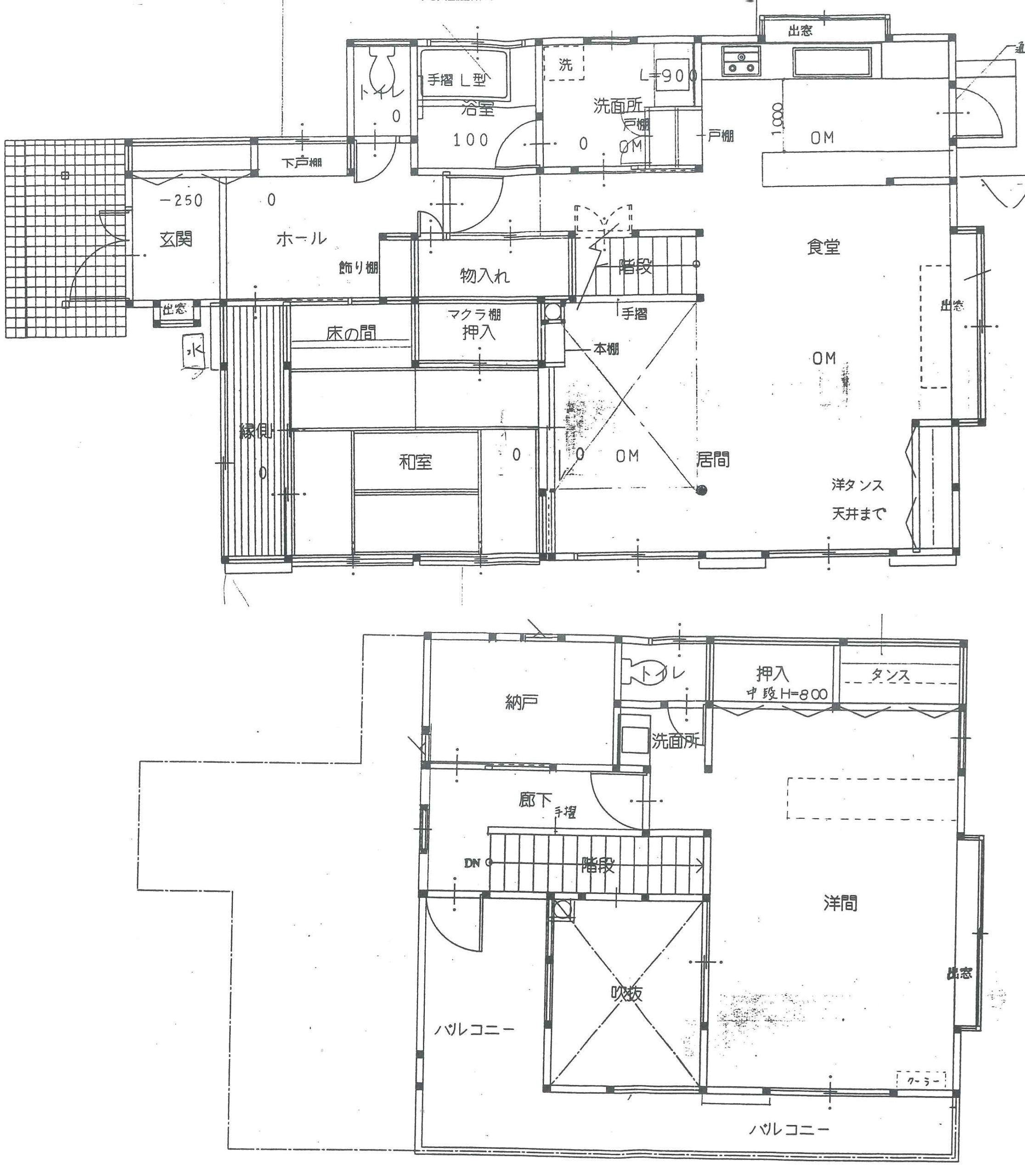
吹抜けと階段が中心に設けられた別荘のようなお家
玄関へ入ると広さや照明に灯された飾り棚があり、玄関から廊下(縁側)を通り抜けると和室の客間があり、お庭の灯篭、水鉢、庭石や植栽の配置を眺めながら来客のおもてなしができそうです。建物のおおよそに中心部分に吹き抜けや階段があり、吹き抜け部分に設けられた開口部から太陽の日が差し込み、天井から吊り下げられた照明が周囲を灯し、室内を優しく包む明るい空間となりそうです。階段の上り下りをするときはLDKを通る抜ける動線となっており、建物全体として感じることは、吹抜けや階段を建物全体のコアな部分として設計し、生活スタイルの動線と来客の動線を分けたプランニングになっているような気がします。和室の客間には沓脱石(くつぬぎいし)があり、時間に余裕があるときはそこに足を下し、お庭を静かに眺めるのも良いかもしれません。
2階は、居室、トイレ、収納及びバルコニーを中心として構成され、居室はゆったりとした広さを確保しており、バルコニーへと続いています。南側と西側にバルコニーがあり、それらは連続し面積があり、自由に行き来がすることができます。
他にも特色として、多めの収納、2ヶ所トイレ、駐車2台可能等があります。お庭は和のテイスト、室内は和洋折衷のテイストとなっており、非日常的で優雅な雰囲気や別荘的な雰囲気を感じ取れ、吹抜けと階段が建物の中心に設けられた余裕のある2LDKのお家だと思います。また、昨今、再開発が進みつつある新山口駅まで徒歩約15分程度にあり、ミドル的な高台に位置しています。
万一、記載内容に誤りやおおげさな内容等がございましたらご了承下さい。
動画で内覧
物件詳細情報
- 所在地
- 山口市小郡下郷10500番地8他
- 価格
- 1,800万円
- 間取り
- 2LDK
- 建築時期
- 平成6年10月築
- 構造
- 木造セメント瓦葺2階建
- 土地面積
- 228.08㎡/68.99坪
- 建物面積
- 1階85.73㎡/25.93坪 2階41.95㎡/12.68坪 合計127.68㎡/38.62坪
- 駐車場
- 2台可
- 設備
- 上水道、下水道
- 現況
- 空室
- 取引形態
- 仲介
- 入居可能日/引き渡し時期
- 相談
- 建ぺい率
- 60%
- 容積率
- 200%
- 用途地域
- 第1種住居専用地域
- 地目
- 宅地
- 特記事項
- ・安成工務店の家
・前面道路 山口市所有
・共有持分として、道路部分及び山林部分の持分あり
・雨漏りの箇所あり(2階部分)
・OMソーラー 内容や状態は詳細不明
物件マップ
物件一覧
昨今の新山口駅周辺は、民間主導の新山口駅北口の再開発事業”新山口駅北地区重点…
価格 720万円 1坪あたり約20万円















